《株洲市石峰区轨道城片区03单元02、03街坊部分地块控规修改方案》等三个项目规划方案公示
时间:2019-04-11
公示说明
该规划选址论证方案于2019年1月16日通过专家评审会,并于2019年03月22日通过2019年第一次株洲市城乡规划委员会执行委员会,为提高规划的科学性和民主性, 现将该方案予以公示,请广大市民提出宝贵意见,公示时间为30天(2019 年4月11日至2019年5月10日),意见反馈方式:
1、 网上留言请登录株洲市自然资源和规划局意见箱:zss22668826@sina.com。
2、 传真:0731-22668828,请注明“规划公示意见”字样,并留下相应的联系方式。
3、 来信请寄株洲市自然资源和规划局技术管理科,地址:株洲市天元区嵩山路222号,邮编:412007,信封上请注明“规划公示意见”。
4、 联系人:
刘志琳 联系电话:0731-22668826
玉智华 联系电话:0731-22872420
株洲市石峰区轨道城片区03单元02、03街坊部分地块控规修改方案公示
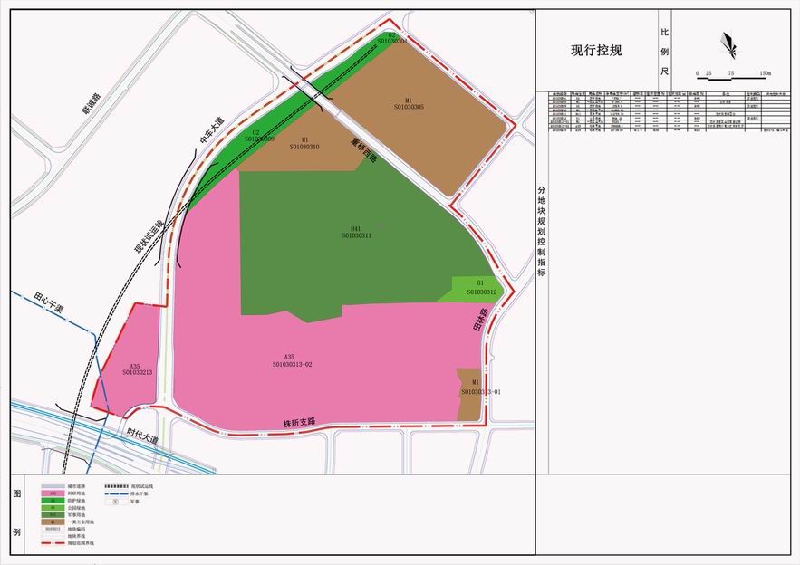
1. 区位及现状
1. 本次拟修改范围位于石峰区轨道城片区03单元02、03街坊范围内,北至现状支路、南到株所支路及时代大道、西至中车大道、东至田林路,面积为54.27公顷。
拟修改地块位于军事用地空四站和电力机车研究所西部、中车株洲所IGBT项目用地南部、《株洲轨道交通特色小镇(老城区)提质改造规划 石峰区轨道城片区03、05、06、08单元控制性详细规划(修改)》(2019)规划范围内、《株洲市城市总体规划(2006-2020年)》(2017年修订)2020中心城区范围内。

2. 修改理由及诉求
为解决试验资源不足的问题,中车株机公司拟在现有试运线路东侧新征部分用地,用于新增建设园区试运线路、供电站房等配套设施,征地面积约57.7亩(38333㎡)。
3. 修改内容及论证
此次规划修改是按照国家及株洲市相关标准规范和技术规定进行修改,现对规划修改的内容及影响总结如下:
(1)中车大道以西科研用地(A35)修改为一类工业用地(M1),面积为23736.36㎡,地块编码为S01030213,建设配套设施及存车场。
(2)中车大道以东沿新增试运线部分科研用地(A35)修改为一类工业用地(M1),面积约为2241.70 ㎡,地块编码为S01030313-03,建设试运线及配套道路。
(3)中车大道以东,重桥西路以南根据试运线拟新征用地线以及现状已征地线将部分防护绿地(G2)修改为一类工业用地(M1),面积约为8409.29 ㎡,地块编码为S01030309-1,建设试运线及配套道路。
(4)中车大道以东,重桥西路以北根据试运线拟新征用地线以及现状已征地线将部分防护绿地(G2)修改为一类工业用地(M1),面积约为4856.55㎡,地块编码为S01030304-1,建设试运线及配套道路。
(5)由于新增试运线将下穿时代大道,需对现状时代大道及其辅道进行优化改造。
结论: 本次修改未涉及居住用地及道路修改,通过对教育设施、医疗设施、道路交通、生态环境、空间景观、市政设施等方面的论证研究,修改可行。
4. 拟修改方案
现行控规

拟修改方案

天元区河西中心片区03单元01街坊T01030104地块控规修改方案公示
1. 区位及现状
本次拟修改地块位于株洲市天元区河西中心片区03单元01街坊内,位于长江北路与森林路交叉口西南侧,面积为9871.25㎡。拟修改地块位于《株洲市城市总体规划(2006-2020年)》(2017年修订)2020中心城区范围内和株洲市河西中心片区(01、02、03、04、05、06、07、10、11、12单元)控规范围内。
本次拟修改地块内现状主要为水塘。地块周边有现状燃气调压站、110kV莲花变电站、地块北部有110kV高压线通过,南部为现状丘陵。

2. 项目背景及诉求
(1)2003年6月株洲湘银投资置业有限公司以拍卖方式取得的天元区23区长江北路西侧地块,土地面积10381.52平方米,土地用途为商业金融用地,出让合同编号为株国土合字(2003)第161号。
(2)2015年5月株洲湘银投资置业有限公司申请将原商业用地的用途调整为加油、加气、充电新能源汽车综合运营等用途,并在2016年《株洲市河西中心片区(01、02、03、04、05、06、07、10、11、12单元)控规调整》 中落实修改为加油加气站用地。
(3)2019年1月29日株洲湘银投资置业有限公司申请按原株洲市规划局回复的编号为株规B1(2015)0167号和株规函(2016)26号的《关于明确规划利用条件的复函》规定的控制要求不变,申请将该地块修改为加油站用地和商业用地。
3. 修改内容及论证
此次规划修改是按照国家及株洲市相关标准规范和技术规定进行调整,现对规划修改的内容及影响总结如下:
1)本次将地块T01030104划分为两个地块(T01030104-1和T01030104-2),其中地块T01030104-1保留原来的加油加气站用地性质不变,净用地面积3697.66㎡,地块控制指标修改为容积率≤0.4,建筑密度≤25%,建筑限高≤15m,绿地率≥20%。地块T01030104-2用地性质修改为商业用地,净用地面积6173.66㎡,地块控制指标修改为容积率≤1.5,建筑密度≤40%,建筑限高≤15m,绿地率≥20%。
2)根据《汽车加油加气站设计与施工规范》(GB50156-2012)(2014年版)、《城镇燃气设计规范》(GB50028-2006)等有关规定,对与长江北路110kV高压线和现状调压站的安全距离进行论证后,均能满足相关规范及标准的要求。
3)规划修改后,拟修改片区常住人口数量未变化,对原公共服务设施、人均道路广场面积、市政基础设施、
五线控制、景观风貌控制等相关内容的影响均符合国家相关标准。
4)修改交通组织、出入口设置及停车位配置对片区影响不大,符合相关规范、规定的要求。
5)用地界线、容积率等用地指标调整后,给排水、电力设施等均满足市政设施的要求。
结论: 河西中心片区03单元01街T01030104地块控规修改可行。
4. 拟修改方案
现行控规方案图

拟修改方案

株洲市群丰污水处理厂规划选址论证方案公示
1. 区位及现状
本次拟调整范围位于天元区群丰镇中部,乐山大道与枫太路交叉口北侧。涉及修改范围总面积为12.75公顷。

图1 群丰污水处理厂服务范围图
2. 调整理由及诉求
1)城市发展的需要
根据《株洲市城市污水工程专项规划(2018-2035)》,群丰污水处理厂的纳污范围北至博古山东路,东至湘江,西至京港澳高速,南至湘醴大道,纳污总面积为54.80km²。目前武广新城东片区已初步建设完成,自主创业园及群丰镇发展迅猛,现阶段该区域污水通过污水提升泵站提升至河西污水处理厂处理。随着河西污水处理厂的处理能力即将达到饱和,区域的污水收集与处置问题已迫在眉睫,需尽快启动群丰污水处理厂的建设, 以保证城市发展的顺利进行。
2)基本农田保护的需要
根据《基本农田保护条例》,任何单位和个人不得改变或者占用基本农田,国家级重点建设项目选址无法避开基本农田的,必须经国务院批准。现群丰镇总体规划确定的污水处理厂选址位于基本农田范围内,近期无法启动建设。
3. 规模
本规划选址污水处理厂的污水处理规模为10万吨/日,占地规模为16公顷。
4. 选址方案
1)规划拟调整群丰污水处理厂至湘芸路与枫太路(G320南线)东南角地块内,用地面积16.02公顷。
2)规划对响泉路线型及沿线建设用地进行调整。
3)原工业用地及广场用地调整为公用工程用地(U1),原加油加气站用地、广场用地调整至湘芸路与枫太路交叉口东北侧。
4) 原污水处理厂拟调整为居住用地,在下一轮国土空间规划编制完成后方可依据规划的建设用地进行。开发建设。
5. 选址论证及结论
1)本方案未占用基本农田,拆迁量较小,且不影响湘江大道沿线土地的开发。
2)群丰污水处理厂解决了自主创业园和武广片区近期污水的排放问题,缓解了现状河西污水处理厂的压力,发挥较大的社会效益、经济效益与环境效益。
3)本污水处理厂周边300米卫生防护距离内未设置住宅、学校、医院等敏感性用途的建设用地。
4)需对群丰污水处理厂尾水排入湘江段的排口位置、水环境容量和鲴鱼种质资源保护区进行单独论证。
结论: 本次修改符合国家相关规范及株洲市相关技术规定要求, 调整可行。
6. 拟调整方案

图2 调整前规划图

图3 拟调整方案
《株洲市石峰区轨道城片区03单元02、03街坊部分地块控规修改方案》等三个项目规划方案公示
责任编辑: