《株洲市天元区雷打石镇总体规划部分用地(株洲海事职业学校)规划修改论证报告及方案》批后公布
时间:2024-11-27
《株洲市天元区雷打石镇总体规划部分用地(株洲海事职业学校)规划修改论证报告及方案》于2024年11月7日经株洲市人民政府批准实施,批复号:株政函〔2024〕90号。现就规划的主要内容公布如下:
1.调规申请单位:株洲海事职业学校有限公司
2.规划编制单位:株洲市规划测绘设计院有限责任公司
3.所属辖区:株洲市天元区
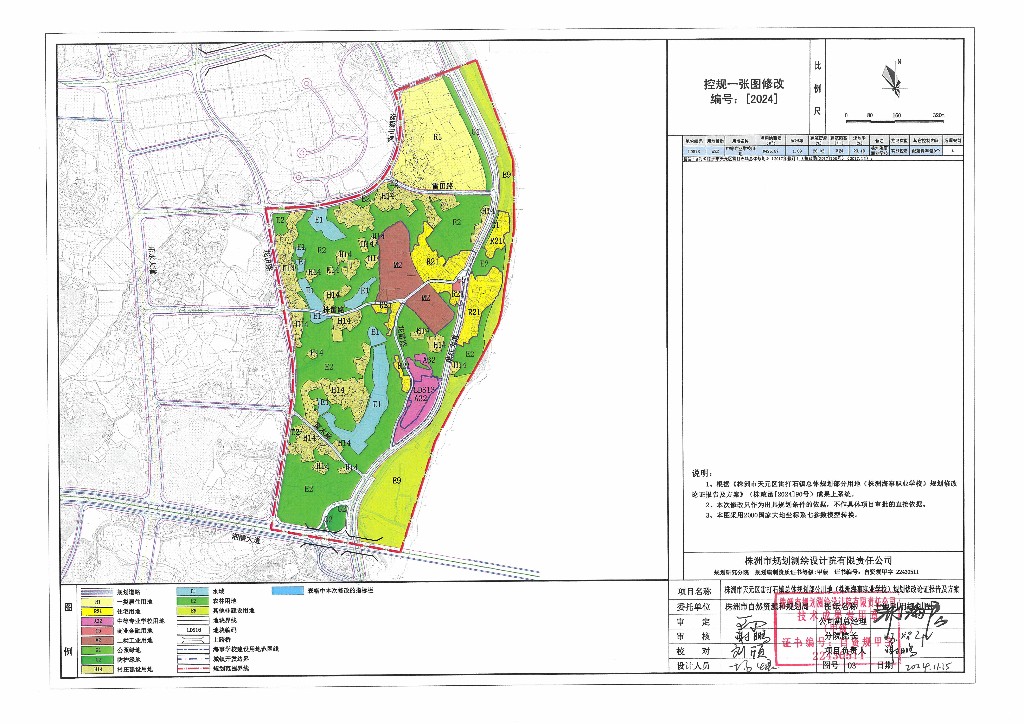
4.用地位置及范围:规划修改地块位于株洲市天元区雷打石镇,湘醴大道以北、滨江大道以西,地块面积约0.94公顷(14.1亩)。衔接在编《株洲市天元区雷打石镇国土空间规划(2021-2035年)》,规划修改范围为由南山湖路、花田路、湘醴大道、湘江西岸围合而成的区域,面积约83.93公顷(1258.95亩)。
5.调整理由: 为改善株洲海事职业学校的办学条件,提升办学品质,优化校园建设空间,申请学校校舍改扩建,同时将用地红线范围内原地块容积率由0.27调整为1.69。
6.公布内容:按集约节约原则,优化滨江大道(雷田路-雷木路)线形,道路标准横断面由40.5米=5+17.5+10+8调整为24米=5+14+5;落实株雷路、雷木路、花雷路线形,道路标准横断面由18米=3+12+3调整为9米;同步修正相关道路竖向,局部排水方向发生变化。衔接在编《株洲市天元区雷打石镇国土空间规划(2021-2035年)》,落实株洲海事职业学校用地,其周边地块按第三次国土调查数据整合;地块LDS13落实2024年第5次《株洲市国土空间规划委员会专题会议纪要》(株规专题纪〔2024〕5号)确定的控制指标,用地面积为0.94公顷,容积率1.69,建筑密度26.02%,建筑限高≤24米,绿地率23.48%,为株洲海事职业学校,配建停车位9个;其他地块控制指标以后续审批的《天元区雷打石镇国土空间规划(2021-2035年)》为准。
7.附图:


责任编辑: